13839097856
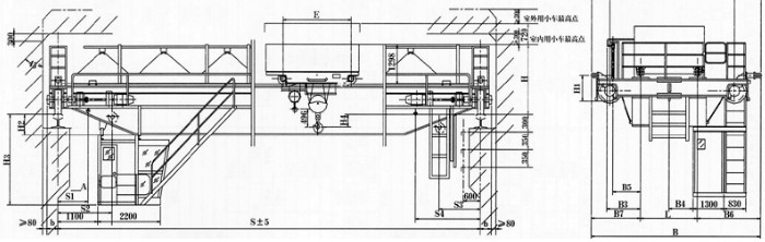
吊钩桥式起重机,主要由桥架、大车运行机构、小车、电器设备等组成。根据使用频繁程度不同,分为A5、A6二种工作级别。
该起重机动作操纵全部在司机室内完成。
注:H0≤250为大车缓冲器增加的高度。
联系人:郎经理 手 机:13839097856 电 话:0373-8415555 传 真:0373-8412555 邮 箱:weiyeweiqi@163.com 网 址:http://www.xxwyqz.com/ 地 址:封尹工业区