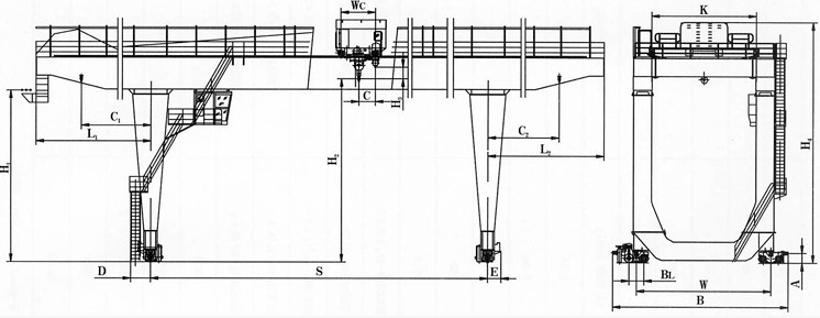
本起重机由桥梁、大车运行机构、小车、电气设备组成。桥架采用箱形焊接结构,大车运行机构采用分别驱动。全部机构均在操纵室内操纵。起重机导电形式分为电缆和滑触线两种,订货时任选一种。
选用本起重机时须填写订货规范表,须注明使用时工作环境的*低温度和*高温度以及电源等。适用场合:
吊钩双梁门式起重机适用于露天仓库或铁路沿线进行一般的装卸及起重搬运作业。配专用吊具可做集装箱作业。

联系人:郎经理 手 机:13839097856 电 话:0373-8415555 传 真:0373-8412555 邮 箱:weiyeweiqi@163.com 网 址:http://www.xxwyqz.com/ 地 址:封尹工业区