13839097856
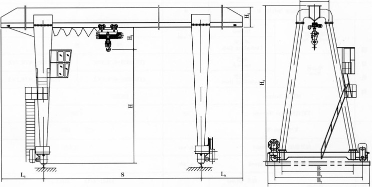
MH型电动葫芦门式起重机与CD、MD等型号的电动葫芦配套使用,是一种有轨运行的中小型起重机,其适用起重量3~16吨,适用跨度为12~30米,工作环境-20摄氏度~ 40摄氏度内。
联系人:郎经理 手 机:13839097856 电 话:0373-8415555 传 真:0373-8412555 邮 箱:weiyeweiqi@163.com 网 址:http://www.xxwyqz.com/ 地 址:封尹工业区